וילה יוקרתית למכירה בקייפ גרקו – שילוב מושלם של נוחות, טבע ויוקרה
מחפשים בית מרווח עם סגנון מודרני, מיקום חלומי והמון פרטיות? הווילה הזו בקייפ גרקו היא בדיוק מה שאתם מחפשים.
מיקום מבוקש – בלב אחד האזורים היפים והפסטורליים בקפריסין, עם גישה נוחה לכבישים ראשיים, מסלולי הליכה ציוריים וחופים עוצרי נשימה במרחק קצר.
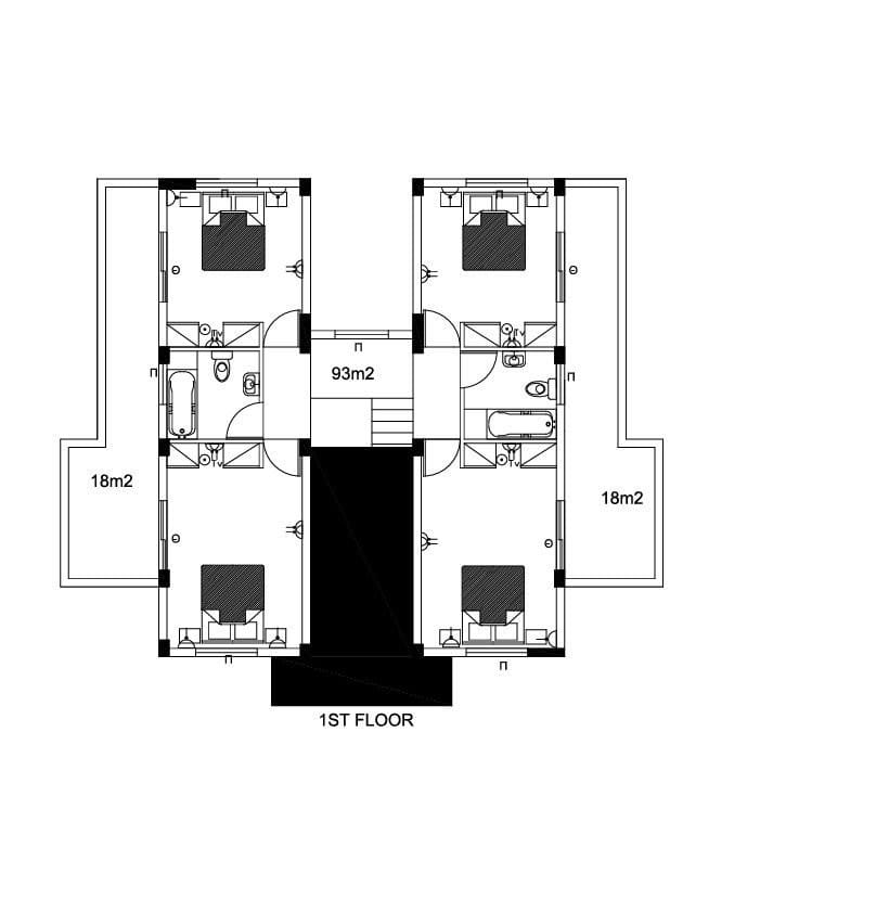
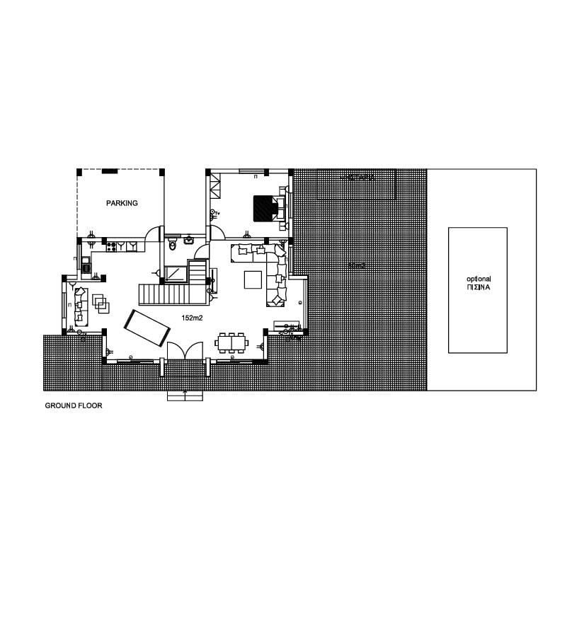
הנכס מציע שילוב נדיר של שטח חיצוני ענק עם גינה מטופחת, פרגולה ופינות ישיבה מוצלות. בפנים תמצאו חללים מוארים, מטבח מודרני עם פינת אוכל, חדרים מרווחים ומפרט יוקרתי ברמה גבוהה.
נופים וחווית מגורים
הווילה משקיפה על נוף כפרי ופנורמי עוצר נשימה, נהנית משקט מוחלט בסמטה ללא מוצא, ומעניקה חווית מגורים נדירה לאוהבי טבע, משפחות או כל מי שמחפש בית יוקרה להשקעה או למגורים אישיים.
וילה יוקרתית למכירה בקייפ גרקו – שילוב מושלם של נוחות, טבע ויוקרה
מחפשים בית מרווח עם סגנון מודרני, מיקום חלומי והמון פרטיות? הווילה הזו בקייפ גרקו היא בדיוק מה שאתם מחפשים.
מיקום מבוקש – בלב אחד האזורים היפים והפסטורליים בקפריסין, עם גישה נוחה לכבישים ראשיים, מסלולי הליכה ציוריים וחופים עוצרי נשימה במרחק קצר.
הנכס מציע שילוב נדיר של שטח חיצוני ענק עם גינה מטופחת, פרגולה ופינות ישיבה מוצלות. בפנים תמצאו חללים מוארים, מטבח מודרני עם פינת אוכל, חדרים מרווחים ומפרט יוקרתי ברמה גבוהה.
נופים וחווית מגורים
הווילה משקיפה על נוף כפרי ופנורמי עוצר נשימה, נהנית משקט מוחלט בסמטה ללא מוצא, ומעניקה חווית מגורים נדירה לאוהבי טבע, משפחות או כל מי שמחפש בית יוקרה להשקעה או למגורים אישיים.
וילה
195 מ"ר
4
the spot glamping studios